Le projet Roquepine est une rénovation complète d’un appartement de 250 m² situé dans le 8ᵉ arrondissement de Paris, réparti sur deux étages et conçu pour offrir des espaces de vie contemporains, confortables et fonctionnels.

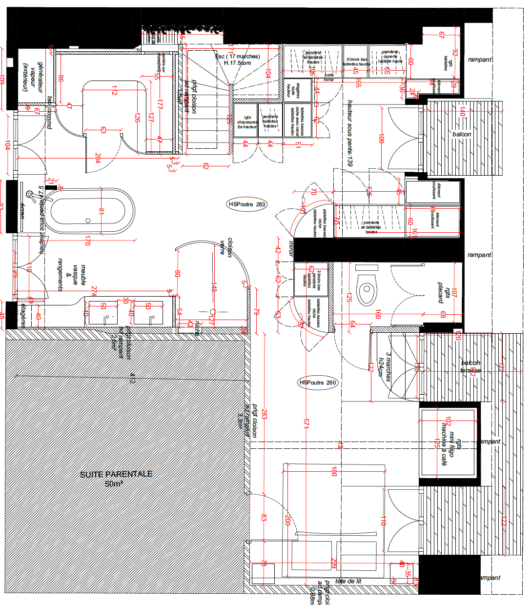
Le projet intègre une suite parentale généreuse, une salle de bains équipée d’un hammam, ainsi qu’une organisation fluide des volumes pour optimiser l’usage quotidien et la circulation.

Ce projet illustre notre approche sur mesure, alliant esthétique, confort et fonctionnalité, tout en respectant le style architectural parisien. La rénovation a été pensée pour valoriser la lumière naturelle, structurer les espaces de vie et créer une ambiance élégante et cohérente qui répond parfaitement aux attentes de nos clients.

Localisation : Paris 8
Surface : 250 m²
Projet : Rénovation complète
Mission : Conception & aménagement intérieur
Spécificité : Suite parentale & hammam
Année : 2024

Rénovation d’appartement à Paris 8 – Projet Roquepine

Suite parentale, salle de bains & hammam

Un des points forts du projet Roquepine est la création d'une suite parentale spacieuse avec une salle de bains équipée d’un hammam. Cette salle de bain a été pensée comme un lieu de bien-être quotidien, combinant finitions haut de gamme, matériaux raffinés et aménagements techniques adaptés pour un confort optimal.

Rénovation appartement Paris 8 – suite parentale rénovée

Choix des matériaux et ambiance

Les matériaux sélectionnés pour ce projet ont été choisis pour leur qualité, leur capacité à capter la lumière et leur harmonie visuelle : surfaces claires, contrastes subtils entre éléments naturels et finitions modernes, et textures qui créent une ambiance accueillante et sophistiquée.

Rénovation intérieur Paris 8 – aménagement séjour
Salle de bain avec hammam rénovation Paris 8

Résultat et confort quotidien

La rénovation Roquepine transforme un appartement haussmannien traditionnel en un intérieur contemporain, adapté aux besoins d’une vie moderne à Paris. Chaque espace a été pensé pour le confort, la lumière et la fonctionnalité, créant une ambiance élégante et cohérente qui valorise l’architecture du lieu.

Choix matériaux haut de gamme rénovation Paris

Plan du projet

Vous avez un projet similaire à Paris ?

Vous souhaitez rénover un appartement à Paris, repenser vos espaces ou créer une suite parentale haut de gamme ? SE Architecture vous accompagne de la conception à la réalisation.

Contactez-nous pour discuter de votre projet.