Maison île de France
Aménagement et décoration d’une maison neuve - 110 m2
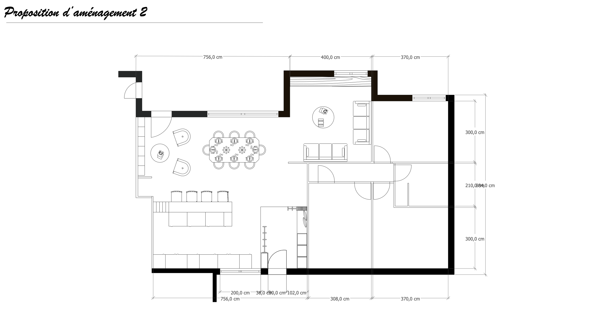
Projet : Aménagement d’une entrée
Intervention : création de meubles sur mesure
La première proposition est retenue
Année : 2021
Maison île de France
Aménagement et décoration d’une maison neuve - 110 m2
Projet : Aménagement d’une entrée
Intervention : création de meubles sur mesure
La première proposition est retenue
Année : 2021